Calais



De Calais is een royale woning met één verdieping die een klassieke stijl combineert met moderne materialen.

Het is ontworpen voor het gezinsleven en beschikt over een ruime woonkamer met toegang tot het terras en een aparte, speciale keuken. De doordachte indeling omvat een privévleugel met drie comfortabele slaapkamers, een grote familiebadkamer en een gastentoilet.

Een opvallend kenmerk is de uitzonderlijk grote geïntegreerde garage met een aangrenzende werkplaats, die ongeëvenaarde praktische bruikbaarheid en ruimte biedt voor een gezin dat op zoek is naar blijvend comfort.

Elk model in onze catalogus is volledig aanpasbaar. Als geen van onze standaardopties bij je visie past, bieden we ook huisontwerpen vanaf nul aan.

Gebruiksoppervlak 165.2 m2
Extern gebied 19.8 m2
Vloeroppervlak 217.9 m2
Aantal verdiepingen 1
Aantal badkamers 2
Aantal slaapkamers 4

Geprefabriceerd huis Structuur Kit

Basisstructuur 33 105 €
Optimale Structuur 49 657 €
Passieve Structuur 64 003 €
Super Passieve Structuur 69 070 €

De getoonde prijzen hebben alleen betrekking op de bouwpakketten (frame) in de geselecteerde thermische optie.

Prijzen zijn exclusief btw.

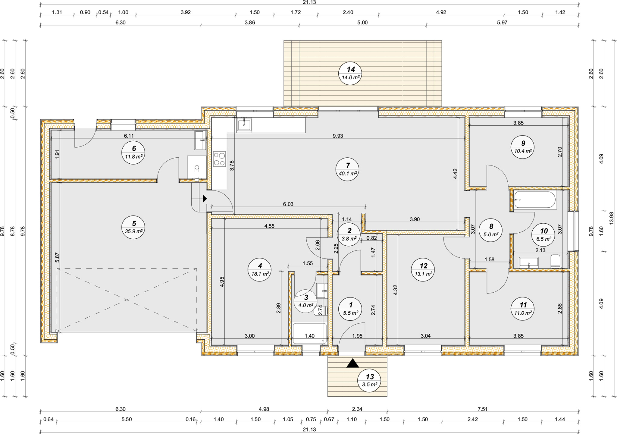
Project plan

01 Gang 5.5 m2
02 Gang 3.8 m2
03 WC 4.0 m2
04 Hoofdslaapkamer 18.1 m2
05 Garage 35.9 m2
06 Technische ruimte 11.8 m2
07 Keuken / Woonkamer 40.1 m2
08 Gang 5.0 m2
09 Slaapkamer #1 10.4 m2
10 Badkamer 6.5 m2
11 Slaapkamer #2 11.0 m2
12 Slaapkamer #3 13.1 m2
13 Veranda 3.7 m2
14 Terras 16.1 m2

Wijziging prijzen

Houd er rekening mee dat de onderstaande prijzen uitsluitend betrekking hebben op de kosten van de structuur van het gebouw!

Deze prijs omvat alleen de structuur in de gespecificeerde technische opties.

De fundering, de technische en elektrische systemen en de binnen- en buitenafwerking zijn niet inbegrepen in de prijs van de huisconstructie.

Klik hier voor een gedetailleerde technische beschrijving van onze bouwtechnologie, waarin de methodologie, materialen en technische normen aan bod komen.

Basisstructuur

33 105

Extra kosten:

  • Montage 15 300 €
  • Levering 4.5 €/km

Onze basisconfiguratie biedt een eenvoudige oplossing voor de bouw van het skelet van het gebouw, zodat u een prefab structuur krijgt die u vervolgens naar wens kunt afwerken.

Dit is een uitstekende optie voor degenen die kosten willen besparen en de vaardigheden hebben om de bouw zelf af te ronden.

Optimale Structuur

49 657

Extra kosten:

  • Montage 16 600 €
  • Levering 4.5 €/km

De optimale configuratie is ontworpen voor gematigde klimaten, met een skeletconstructie met 200 mm isolatie en een interne dampscherm. Deze configuratie zorgt voor een comfortabel binnenklimaat en ondersteunt de structurele integriteit en duurzaamheid van het gebouw.

Deze oplossing is ideaal voor het hele jaar door wooncomfort in gebieden met milde winters.

Passieve Structuur

64 003
290 €/m2

Extra kosten:

  • Montage 18 000 €
  • Levering 4.5 €/km

Deze configuratie biedt extra externe isolatie voor het skelet van het gebouw, met een isolatiedikte aangepast aan de lokale klimaatomstandigheden.

Het belangrijkste voordeel van deze oplossing is de verbeterde thermische bescherming, die in de zomer een koelere woning biedt en in de winter het energieverbruik voor verwarming verlaagt. In de komende tien jaar zal deze passieve isolatie aanzienlijke besparingen opleveren op verwarmings- en koelrekeningen.

Deze oplossing is bijzonder geschikt voor gebieden met strenge winters en zeer warme klimaten.

Super Passieve Structuur

69 070

Extra kosten:

  • Montage 21 700 €
  • Levering 6.0 €/km

Onze superpassieve configuratie is ontworpen om te voldoen aan de strenge normen van het passiefhuis en biedt een uitzonderlijke oplossing voor energie-efficiënte en comfortabele woningen. Deze wanden zijn ontworpen volgens de hoogste normen voor energiezuinige bouw en bieden indrukwekkend wooncomfort en aanzienlijke energiebesparingen.

Onze superpassieve wanden, gebouwd met geavanceerde isolatiematerialen, helpen het hele jaar door een constante binnentemperatuur te behouden: koel in de hete zomer en warm in de koude winter. De uitstekende isolatie minimaliseert de behoefte aan extra verwarming en koeling en verlaagt het energieverbruik drastisch, tot wel 75% in vergelijking met conventionele nieuwbouw.

Bovendien dragen deze wanden bij aan een gezondere woonomgeving door tocht, koude plekken, schimmel en condensatie te voorkomen.

Door te vertrouwen op een “eerst de schil”-benadering, bieden deze wanden niet alleen het gebruik van ecologische technologieën, maar zijn ze vanaf het begin ontworpen voor een efficiënte prestatie. Met tientallen jaren onderzoek ter ondersteuning van de passiefhuisstandaard, biedt onze superpassieve oplossing langdurige kwaliteit en gegarandeerde prestaties, wat het een ideale keuze maakt voor iedereen die comfort en duurzaamheid in hun huis zoekt.

Neem contact op




* Als u interesse heeft in een specifieke woning, vermeld dan alstublieft om welke woning het gaat.


© 2024 Alle rechten voorbehouden door Senmar.